Rif: 27-CV
BORGOSATOLLO
BRESCIA
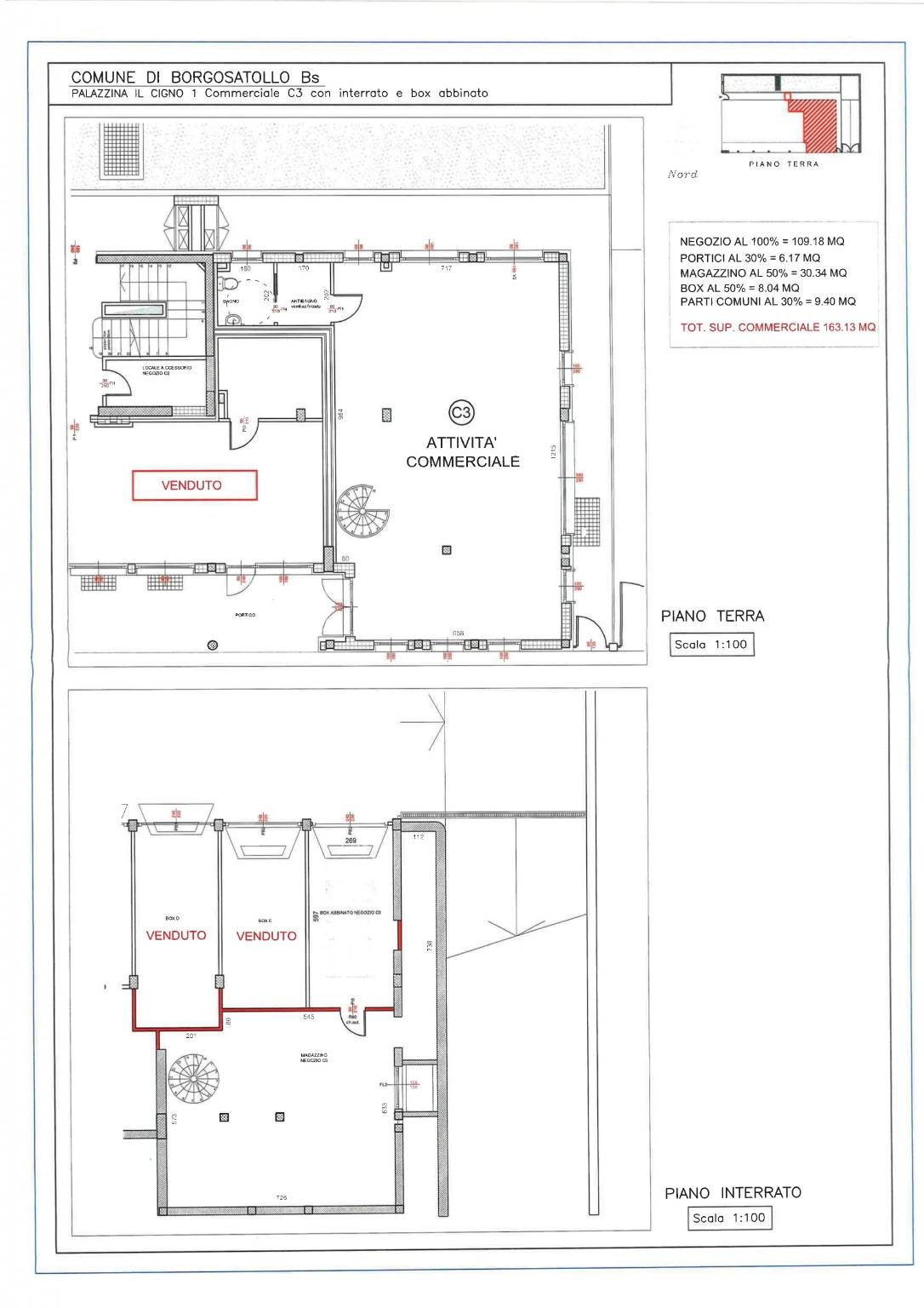
Borgosatollo, situato in una nuova zona residenziale, luminoso negozio. Immobile al rustico e quindi interamente personalizzabile a seconda delle proprie esigenze. Internamente il negozio ha una superficie al piano terra di mq. 110, organizzata come un unico ambiente open-space e blocco servizi, al piano interrato troviamo invece, un funzionale magazzino di mq 36 direttamente collegato sia al negozio che ad un box auto di pertinenza. Il riscaldamento autonomo permette una gestione contenuta delle spese. Le tre vetrine fronte strada ne accrescono la visibilità. Comodissimi i parcheggi liberi antistanti la proprietà. A di una piccola indagine di mercato pubblichiamo render e distribuzione interna di una possibile e interessate attività commerciale
CLASSE ENERGETICA: ESENTE
Agente responsabile: Bruno Rovati
CLASSE ENERGETICA: ESENTE
Agente responsabile: Bruno Rovati
Consistenze
| Descrizione | Superficie | Sup. comm. |
|---|---|---|
| Principali | ||
| Ufficio - piano terra | 110 Mq | 110 Mqc |
| Magazzino - seminterrato | 40 Mq | 20 Mqc |
| Altro - seminterrato | 5 Mq | 2 Mqc |
| Box/Garage - seminterrato | 14 Mq | 7 Mqc |
| Totale | 139 Mqc | |







